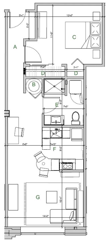
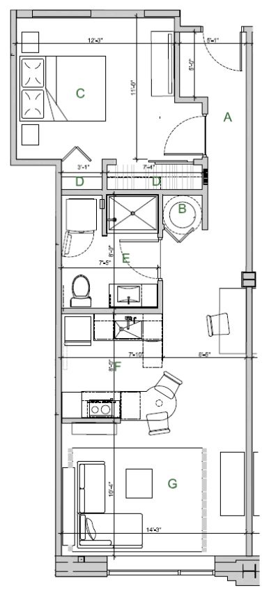
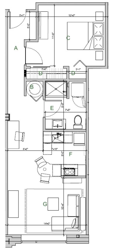
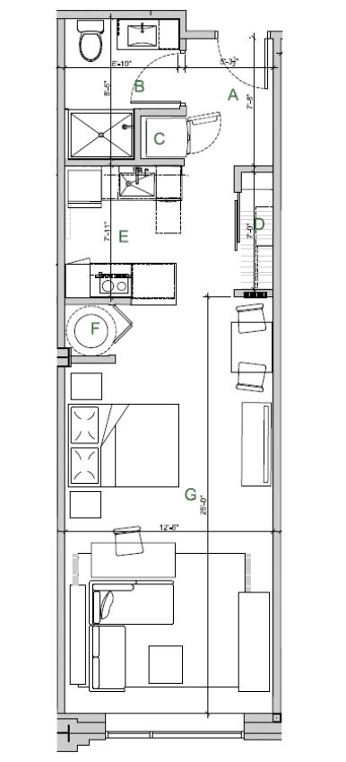
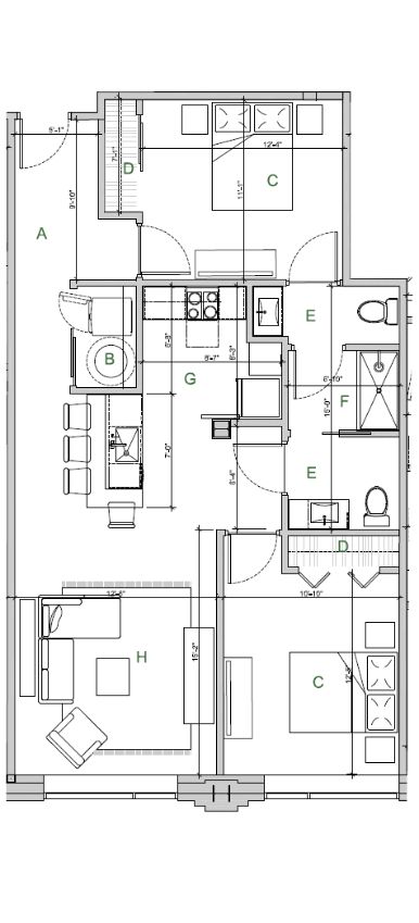
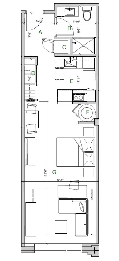
Located on the main street of Downtown Lancaster, The Apartments at 101 North Queen feature spacious layouts, industrial-style high ceilings, direct access to a parking garage, and a secure fob system throughout the building. Boasting a 99% walkability score, you’ll be just steps from local shops, dining, entertainment, and convenient transportation options!































Copyright © 2026 · Genesis Framework · WordPress · Log in